Pafos, Dystrykt Pafos / 625/464/ODS
Sprzedaż, 305 m2
Lokalizacja
Państwo
Cypr
Pafos, Dystrykt Pafos
Pafos, Dystrykt Pafos
Podstawowe informacje
Cena
2 200 000
Powierzchnia
305 m2
Rodzaj nieruchomości
Dom
Rodzaj transakcji
Sprzedaż
Rynek
Pierwotny
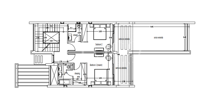
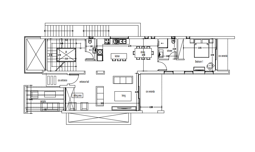
Liczba pokoi
6
Liczba sypialni
5
Liczba łazienek
3
Budynek
Rok budowy
2024
Liczba pięter
2
Informacje dodatkowe
Ogród
Basen




















