Limassol District / 614/464/ODS
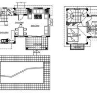
Sprzedaż, 153.68 m2
Lokalizacja
Państwo
Cypr
Limassol District
Limassol District
Podstawowe informacje
Cena
600 000
Powierzchnia
153.68 m2
Rodzaj nieruchomości
Dom
Rodzaj transakcji
Sprzedaż
Rynek
Pierwotny
Liczba pokoi
4
Liczba sypialni
3
Liczba łazienek
2
Lokalizacja garażu
Ground
Budynek
Rok budowy
2025
Liczba pięter
1
Informacje dodatkowe
Ogród
Basen










