Pafos, Dystrykt Pafos / 610/464/ODS
Sprzedaż, 145.8 m2
Lokalizacja
Państwo
Cypr
Pafos, Dystrykt Pafos
Pafos, Dystrykt Pafos
Podstawowe informacje
Cena
530 000
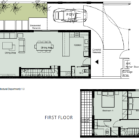
Powierzchnia
145.8 m2
Rodzaj nieruchomości
Dom
Rodzaj transakcji
Sprzedaż
Rynek
Pierwotny
Liczba pokoi
4
Liczba sypialni
3
Liczba łazienek
3
Lokalizacja garażu
Ground
Budynek
Rok budowy
2026
Liczba pięter
1
Informacje dodatkowe
Ogród
Basen










