









Sprzedaż, 172.12 m2
Lokalizacja
Podstawowe informacje
Budynek
Informacje dodatkowe
Rozalin dom 172m2 | działka 1500 m² | 5 pokoi
Z przyjemnością prezentujemy Państwu nową ofertę na sprzedaż domu w stanie deweloperskim. W zielonym Rozalinie, wśród ciszy, drzew i zapachu żywicy, czeka na Ciebie nowy dom — funkcjonalny, przemyślany, gotowy na aranżację według Twojego stylu życia.
To dom o powierzchni niemal 140 m² w stanie deweloperskim, położony na pięknej, zadrzewionej działce o powierzchni 1500 m². Dom gotowy jest aby wykończyć go zgodnie z własnymi preferencjami i stworzyć swoją wymarzoną przestrzeń do życia.
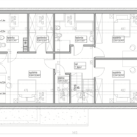
ROZKŁAD
Oferta prezentuje jednopiętrowy dom z dwustanowiskowym garażem (33,15m2) znajdującym się w bryle dom. Parter domu zaprojektowano aby pełnił funkcję strefy dziennej i gościnnej.
Na parterze znajdują się:
przedpokój, otwarta kuchnia z przylegającą do niej spiżarnią -to mega funkcjonalna przestrzeń do przechowywania, gdzie wszystko jest pod ręką. Dalej znajdują się salon z dużymi oknami i widokiem na ogród a także pokój (gabinet lub pokój gościnny) i toaleta. W kuchni przygotowane są podłączenia do zbudowania wyspy kuchennej.
Piętro natomiast przygotowane zostało z myślą o wypoczynku i prywatności.
To tam znajdują:
główna sypialnia z łazienką i garderobą oraz dwie dodatkowe sypialnie, łazienka oraz pralnia– praktyczne rozwiązanie, które naprawdę robi różnicę.
STANDARD
Dom zbudowany i przygotowany został w stanie deweloperskim o pogłębionym charakterze.
Salon jest przestronny i jasny z panoramicznymi oknami i bezpośrednim wyjściem na taras.
W domu zainstalowane zostało ogrzewanie podłogowe.
W nieruchomości założona została instalacja alarmowa, osprzęt elektryczny, automaty do bram wjazdowej oraz garażowej a także wykończony został podjazd i taras.
Nowe nasadzenia wokół tarasu nadają mu prywatność i naturalny charakter. Całość dopełnia ogrodzenie metalowe z murowanymi elementami oraz automatyczną bramą wjazdową – solidnie i estetycznie.
Dodatkowe okna dachowe doświetlają wnętrza, a duże przeszklenia w salonie otwierają przestrzeń na ogród – tak, by światło i zieleń były obecne przez cały rok.
Dom z potencjałem i spokojem w tle. To miejsce dla osób, które chcą zamieszkać w domu zaprojektowanym z rozsądkiem i wyczuciem proporcji – gdzie metraż jest wystarczający, ogród daje oddech, a lokalizacja zapewnia szybki dojazd do Warszawy.
LOKALIZACJA
Rozalin to kameralna miejscowość w otoczeniu lasów, położona w pobliżu Nadarzyna i S8. W zasięgu kilku minut znajdują się szkoły, sklepy, lokalne restauracje i tereny rekreacyjne.
DROGA DOJAZDOWA
droga utwardzona
MEDIA
energia elektryczna
woda miejska
gaz
światłowód w drodze
DODATKOWE INFORMACJE
na działce znajduje się dwukomorowe szambo 10m3 ze wzmocnioną płytą najazdową.
2 miejsca parkingowe w garażu i 2 miejsca na podjeździe.
Ogrzewanie: kocioł gazowy kondensacyjny z zasobnikiem ciepłej wody.
Forma własności: pełna własność.
Obciążenia: brak.
W skrócie:
- Powierzchnia domu: 139m²
- Działka: 1500 m², zadrzewiona, z nasadzeniami
- Stan deweloperski
- 5 pokoi, 2 łazienki + WC
- Garaż dwustanowiskowy
- Kotłownia, pralnia, spiżarnia
- Taras i podjazd wykonane
- Ogrodzenie metalowo-murowane z bramą automatyczną
- Panoramiczne okna, dużo światła, funkcjonalny układ
- Rozalin – okolice Nadarzyna / trasa S8
Chcesz zobaczyć, jak ten dom wygląda w rzeczywistości?
Zadzwoń — chętnie pokażę Ci, jak dobrze można mieszkać w Rozalinie.
Oferta ma charakter informacyjny i nie stanowi oferty handlowej w rozumieniu przepisów prawa.
LOCO Real Estate dokłada wszelkich starań, aby treści przedstawione w naszych ogłoszeniach były aktualne i rzetelne. Dane dotyczące ofert uzyskano na podstawie oświadczeń właścicieli nieruchomości.










